Industrial/Warehouse
ID 32043Updated
Lease
90 Pavilion Drive
90 Pavilion Drive
Mangere
Please contact us for price
- Size10,402 SQM

Richard McNaught
Head of Logistics & Industrial - Auckland
Agent details

Charlie Todd
Associate Director, Logistics & Industrial
Agent details
- Description
- Building Information
- Location
- Agents
- Enquire
Description
Pavilion Perfection
This new industrial facility due for completion in Q4 2022 is set to be in a class of its own.
The developer is targeting a Greenstar 5 rating for this build and the neighbouring building. The warehouse will be clear span and fully sprinklered with high spec floors and a stud height rising to 16.75m.
Located within the highly sought after industrial suburb of Airport Oaks, this property is surrounded by other A-grade assets and blue chip tenants. It offers close proximity to main arterials and easy access to SH20.
With vacancy levels the lowest we have on record and limited upcoming opportunities, tenants need to act quickly. There is an additional 5,200sqm warehouse available next door.
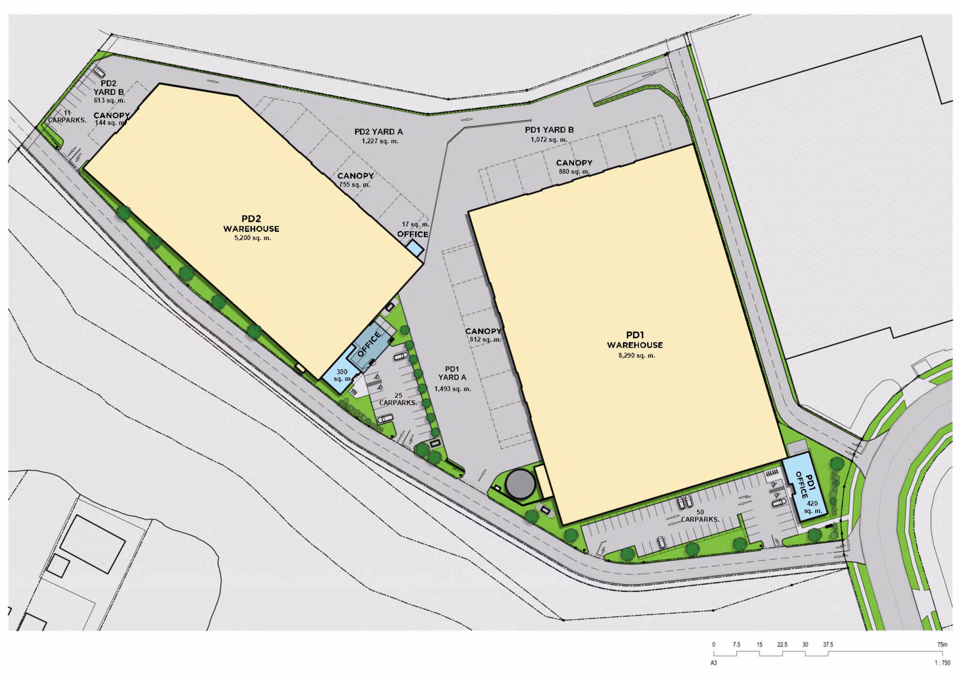
* Warehouse - 8,290m²
* Office - 420m²
* Canopy - 1,692m²
* Yard - 2,565m²
* 50 Carparks
Act now! Call us for more details or to arrange a time to visit the site.
This new industrial facility due for completion in Q4 2022 is set to be in a class of its own.
The developer is targeting a Greenstar 5 rating for this build and the neighbouring building. The warehouse will be clear span and fully sprinklered with high spec floors and a stud height rising to 16.75m.
Located within the highly sought after industrial suburb of Airport Oaks, this property is surrounded by other A-grade assets and blue chip tenants. It offers close proximity to main arterials and easy access to SH20.
With vacancy levels the lowest we have on record and limited upcoming opportunities, tenants need to act quickly. There is an additional 5,200sqm warehouse available next door.
* Warehouse - 8,290m²
* Office - 420m²
* Canopy - 1,692m²
* Yard - 2,565m²
* 50 Carparks
Act now! Call us for more details or to arrange a time to visit the site.
Location
Agents

Richard McNaught
Head of Logistics & Industrial - Auckland
Agent details

Charlie Todd
Associate Director, Logistics & Industrial
Agent details

