Retail
ID MLNZL0002622Updated
Lease
50 Albert Street
50 Albert Street
Auckland Central
Please contact us for price
- Size22.6 - 116.5 SQM

Nilesh Patel
Head of Retail Leasing, New Zealand
Agent details

Ranesh Parmar
Director, Retail Sales and Leasing, New Zealand
Agent details
- Description
- Building Information
- Location
- Agents
- Enquire
Description
Brand New 50 Albert Street Retail
JLL are proud to release an exclusive request for proposal (RFP) campaign for the ground floor retail units in the soon to be completed building at 50 Albert Street in the Auckland CBD.
Please register your interest for the unit sizes listed below to receive a copy of the RFP pack for each respective unit we have on offer, proposals are due to close on the 28th of October 2024.
Unit sizes are listed below and include a share of the common area facilities within the building.
Services are available to suit a range of uses including hospitality for each of the units.
- Retail 3 – 116.5 sqm
- Retail 4 – 88.5 sqm
- Retail 5 – 54.1 sqm
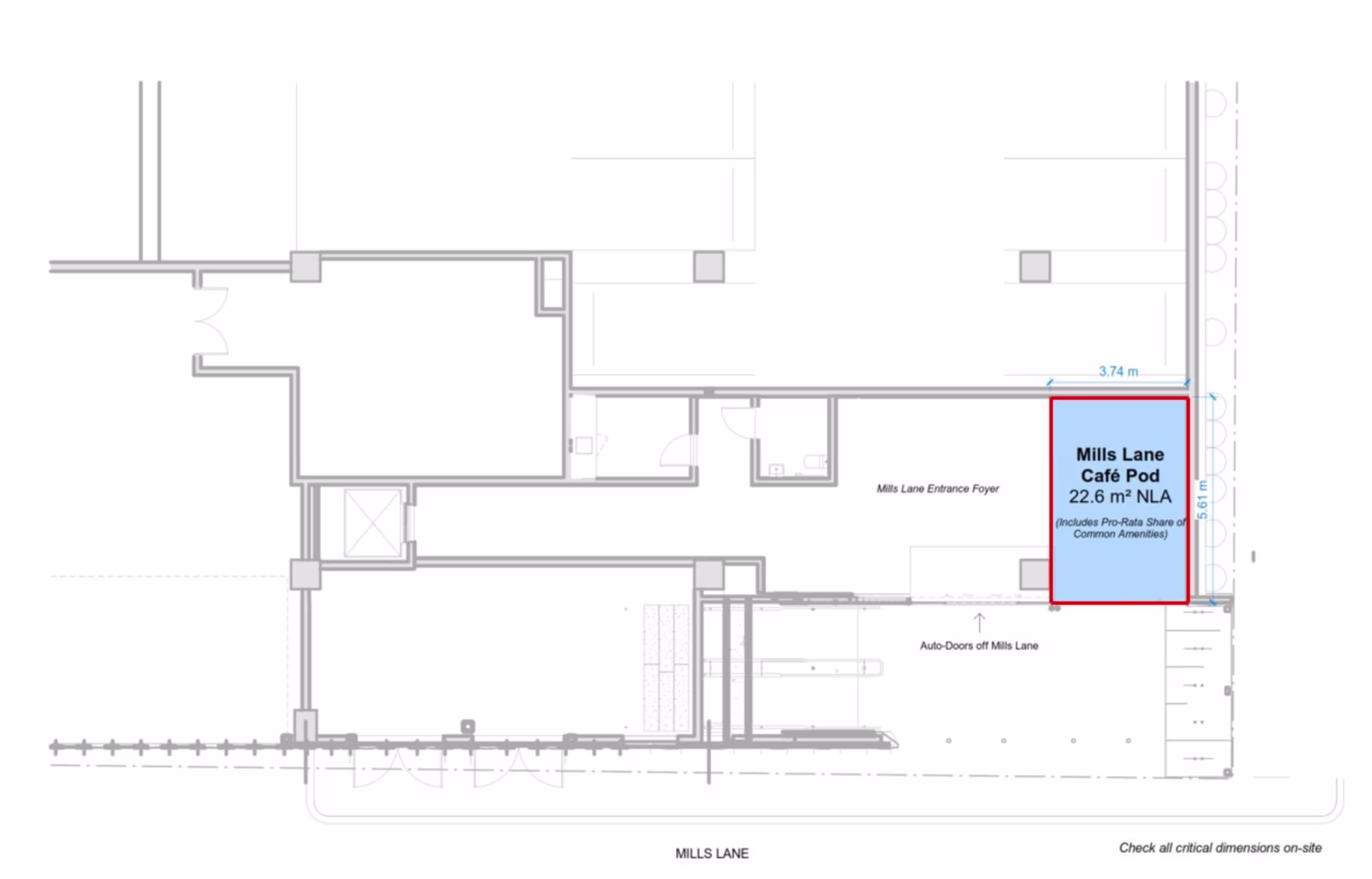
- Café/Retail Pod Mills Lane – 22.6 sqm
50 Albert Street is a high profile, new development brought to the market by Mansons TCLM.
Located in the heart of Auckland CBD, 50 Albert Street is the largest office project currently underway in the city. This impressive development is set to become the most sustainably built six-star green-rated building in the entire CBD, solidifying its status as a beacon of environmental responsibility.
The building encompasses a total offering of 29,940 sqm of office space and 600 sqm of ground floor commercial space spread across 15 levels, 50 Albert Street offers an abundance of opportunity, ensuring that businesses of all sizes can find the perfect fit within this state-of-the-art facility. The ground floor retail adds convenience and vibrancy to the building, while the four levels of basement car parking provide ample space for tenants and visitors.
One of the major benefits of 50 Albert Street is its prime location. With two street frontages, this building enjoys excellent connectivity and accessibility.
The central position ensures easy access to public transport options, making commuting a breeze for employees.
Contact the exclusive agents below for more information.
JLL are proud to release an exclusive request for proposal (RFP) campaign for the ground floor retail units in the soon to be completed building at 50 Albert Street in the Auckland CBD.
Please register your interest for the unit sizes listed below to receive a copy of the RFP pack for each respective unit we have on offer, proposals are due to close on the 28th of October 2024.
Unit sizes are listed below and include a share of the common area facilities within the building.
Services are available to suit a range of uses including hospitality for each of the units.
- Retail 3 – 116.5 sqm
- Retail 4 – 88.5 sqm
- Retail 5 – 54.1 sqm
- Café/Retail Pod Mills Lane – 22.6 sqm
50 Albert Street is a high profile, new development brought to the market by Mansons TCLM.
Located in the heart of Auckland CBD, 50 Albert Street is the largest office project currently underway in the city. This impressive development is set to become the most sustainably built six-star green-rated building in the entire CBD, solidifying its status as a beacon of environmental responsibility.
The building encompasses a total offering of 29,940 sqm of office space and 600 sqm of ground floor commercial space spread across 15 levels, 50 Albert Street offers an abundance of opportunity, ensuring that businesses of all sizes can find the perfect fit within this state-of-the-art facility. The ground floor retail adds convenience and vibrancy to the building, while the four levels of basement car parking provide ample space for tenants and visitors.
One of the major benefits of 50 Albert Street is its prime location. With two street frontages, this building enjoys excellent connectivity and accessibility.
The central position ensures easy access to public transport options, making commuting a breeze for employees.
Contact the exclusive agents below for more information.
Location
Agents

Nilesh Patel
Head of Retail Leasing, New Zealand
Agent details

Ranesh Parmar
Director, Retail Sales and Leasing, New Zealand
Agent details







