Retail
ID 73408Updated
Lease
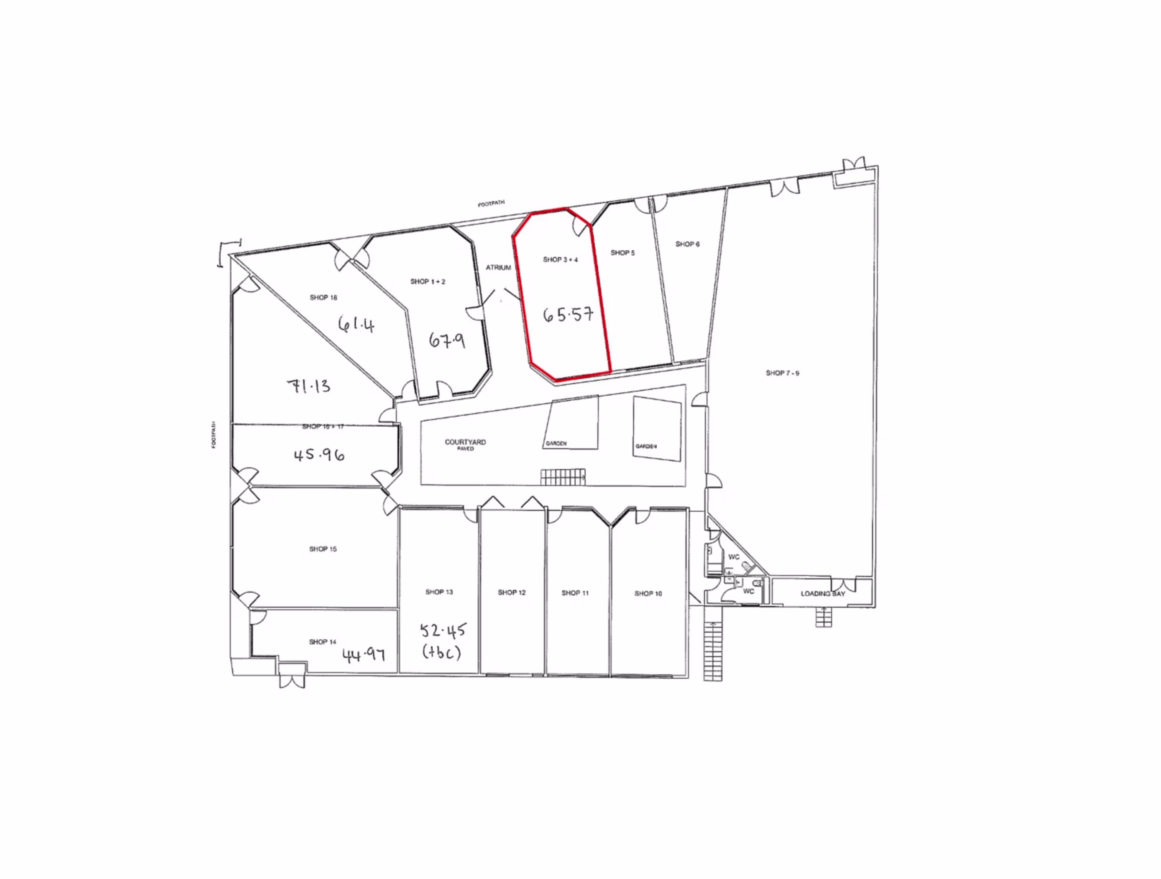
Shop 3 & 4, 282 Ponsonby Road
282 Ponsonby Road
Ponsonby
Please contact us for price
- Size65.57 SQM

Ranesh Parmar
Director, Retail Sales and Leasing, New Zealand
Agent details

Nilesh Patel
Head of Retail Leasing, New Zealand
Agent details
- Description
- Building Information
- Location
- Agents
- Enquire
Description
Premium All Saints Retail Opportunity
JLL is pleased to present to the market for lease Shop 3 & 4, 282 Ponsonby Road, Ponsonby.
Key features
* Premium front entrance corner location at All
Saints Shopping Centre
* 50.77sqm GF with 14.8sqm mezzanine
* Tidy retail store with small mezzanine floor
* Car Parking options available at additional cost
* Available November 2025 or earlier by mutual
agreement
* Suitable for various boutique retail uses
For more information regarding this property, or to arrange a viewing - please contact your JLL retail specialists.
JLL is pleased to present to the market for lease Shop 3 & 4, 282 Ponsonby Road, Ponsonby.
Key features
* Premium front entrance corner location at All
Saints Shopping Centre
* 50.77sqm GF with 14.8sqm mezzanine
* Tidy retail store with small mezzanine floor
* Car Parking options available at additional cost
* Available November 2025 or earlier by mutual
agreement
* Suitable for various boutique retail uses
For more information regarding this property, or to arrange a viewing - please contact your JLL retail specialists.
Location
Agents

Ranesh Parmar
Director, Retail Sales and Leasing, New Zealand
Agent details

Nilesh Patel
Head of Retail Leasing, New Zealand
Agent details






